Domov - Všetky nehnuteľnosti - Pozemok - STAVEBNÝ POZEMOK SO STAVEBNÝM POVOLENÍM, POKOJNÁ A TICHÁ POLOHA – DEBELJAK, SUKOŠAN
STAVEBNÝ POZEMOK SO STAVEBNÝM POVOLENÍM, POKOJNÁ A TICHÁ POLOHA – DEBELJAK, SUKOŠAN
STAVEBNÝ POZEMOK SO STAVEBNÝM POVOLENÍM, POKOJNÁ A TICHÁ POLOHA – DEBELJAK, SUKOŠAN
STAVEBNÝ POZEMOK SO STAVEBNÝM POVOLENÍM, POKOJNÁ A TICHÁ POLOHA – DEBELJAK, SUKOŠAN

STAVEBNÝ POZEMOK SO STAVEBNÝM POVOLENÍM, POKOJNÁ A TICHÁ POLOHA – DEBELJAK, SUKOŠAN

Sukošan 137 000 €
POPIS NEHNUTEĽNOSTI
ZÁKLADNÉ INFORMÁCIE

EXKLUZÍVNY PREDAJ! VÝBORNÁ PRÍLEŽITOSŤ

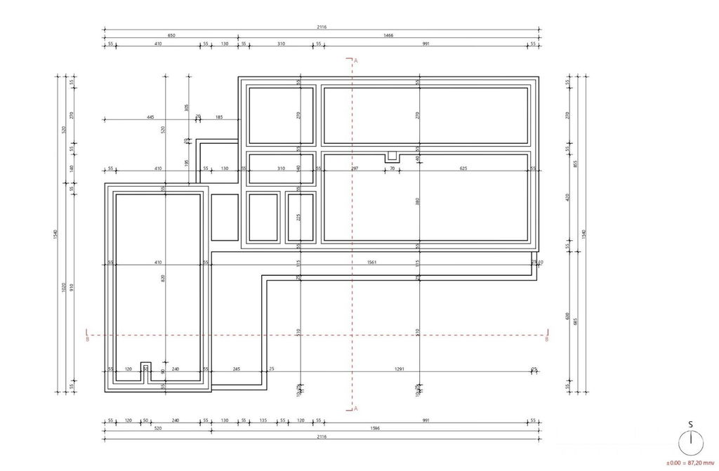
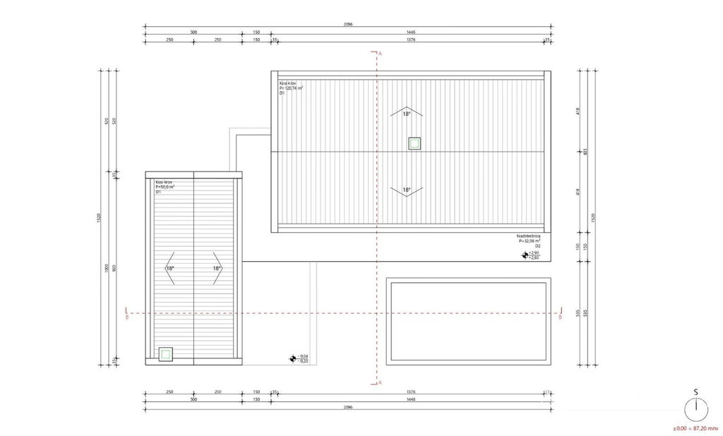
Stavebný pozemok s výhľadom na more a právoplatným stavebným povolením na prízemný dom.

Pozemok má pravidelný štvorcový tvar s celkovou výmerou 659 m²; prístup z bielej cesty – komunikácie.

Voda a elektrina sa nachádzajú bezprostredne pri pozemku.
Podľa územného plánu je minimálna plocha pre výstavbu samostatne stojaceho domu 400 m² s koeficientom zastavanosti (Kig) 0,30 a koeficientom využitia (Kis) 0,25.

Možnosť zmeny stavebného povolenia na výstavbu ďalšieho podlažia!

 

OPIS NEHNUTEĽNOSTI:

  • 3 spálne, priestranná obývacia izba s kuchyňou – open space koncept, prístupová terasa so schodiskom a letná kuchyňa s kúpeľňou.
  • Podľa projektu je plánovaný aj bazén.
  • Pokojná a tichá poloha, obklopená prírodou.
  • Vzdialenosť od centra 450 m, od mora a maríny Sukošan – 2250 m – 10 minút autom
  • Blízkosť letiska – 10 minút

 

Pre viac informácií alebo dohodnutie obhliadky nás neváhajte kontaktovať. Radi Vám poskytneme všetky potrebné informácie.

 

 

 

Lokalita
PREHĽAD
ZÁKLADNÉ INFORMÁCIE
Šifra objektu
25-027N
Predajná cena
137 000 €
Lokalita
Sukošan (23206)
Vzdialenosť od mora
2250
Blízko
Centrum
More
Marína
GALÉRIA

KONTAKTUJTE
NÁŠHO MAKLÉRA

  IRIS PASKALEVA

IRIS
PASKALEVA

+421 947 952 960

info@adriateam.sk

KONTAKTNÝ FORMULÁR

KONTAKTUJTE
NÁŠHO MAKLÉRA

Vaša správa bola úspešne odoslaná

Správu sa nepodarilo odoslať. Skúste to prosím znova.

KONTAKTUJTE NÁS EŠTE DNES
ADRIA TEAM REAL ESTATE d.o.o.
Autorizovaný realitný maklér
Vaša správa bola úspešne odoslaná
Správu sa nepodarilo odoslať. Skúste to prosím znova.

Všetky polia sú povinné

© Všetky práva vyhradené 2026 Adria Team | Podmienky používania a pravidla súkromia | Všeobecné zmluvné podmienky

+421 947 952 960